Gable Roof House — 80 m²
A balanced home designed for modern family life
From €65,000
Complimentary consultation
Area: 80 m²
Category: Efficient architecture
Use: Private residence or garden retreat
We guide you through the planning permission process.
What’s included:
Architectural drawings
Structural design
Technical documentation
Professional consultation
Prepared in full compliance with national building regulations.
Receive a proposal tailored to your land




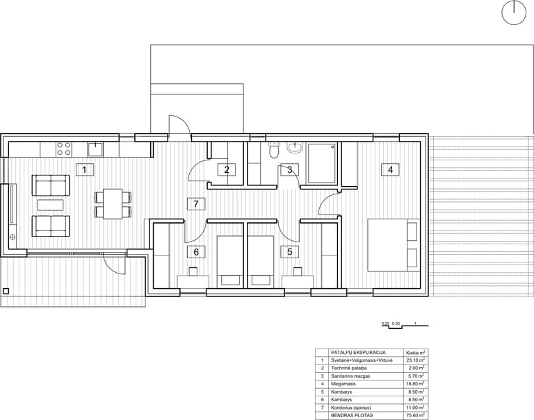
Overview
A comfortable, efficient home designed for modern family life.
The interior features an open-plan living and kitchen area, three private bedrooms, bathroom, entrance hall, and utility room.


Layout
Open-plan living and kitchen area
Private bedrooms
Bathroom
Entrance hall
Utility room
Outdoor terrace




